描述
古北SOHO总建筑面积约158,648㎡,包含一栋38层的办公楼和一座12层的裙楼,集办公、零售和停车服务于一体。古北SOHO位于上海古北国际商务区的核心区域,紧邻新虹桥绿地,周边环境优美、商业氛围浓厚。
古北SOHO是由知名建筑事务所KPF倾力打造,A座主楼设计理念来自罗马尼亚的地标建筑“无尽之柱”,外立面以香槟金色的方形框架为主元素,以优美的比例构成45层(实际39层)高起伏的方塔。
古北SOHO荣获“LEED 金级”、“绿建二星”,旨在打造舒适、健康、高效的办公环境。 外立面是ArtDeco风格的金色格栅,错落而整齐,全玻璃幕墙与金属梃产生有力的视觉美感,不但外观设计的商务感十足,大堂简约大气的风格更加商务;最难得的仍然是其所处的位置,拥有180度绿意葱郁的近景视野。
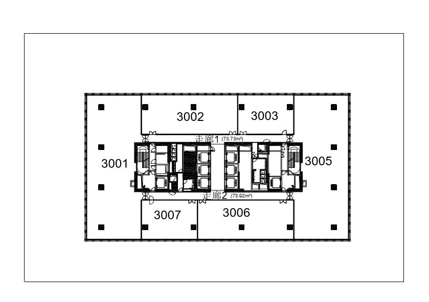
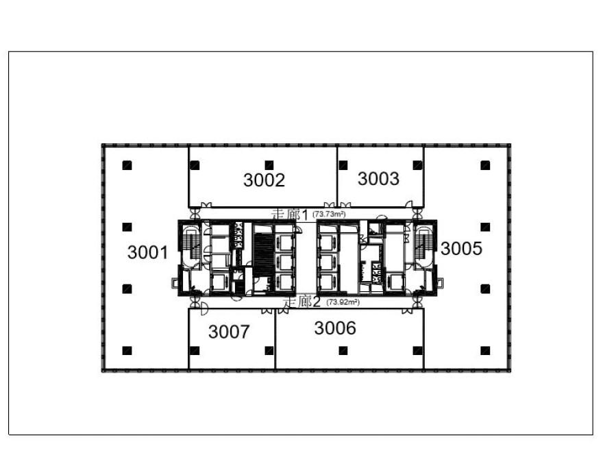
古北soho房型图

古北SOHO房源

视频
租务联系
- 上海市长宁区红宝石路188号
- service@zucbd.com
- 13501883666
基本信息
- 开发商:SOHO中国
- 物业公司:北京搜厚物业管理有限公司
- 竣工日期:2019年
- 建筑楼层:地上45层(实际38层),地下4层
- 占地面积:16,558.3平方米
- 总建筑面积:158,648平方米
- 地上面积:107,589平方米
- 整层面积:约1,620-3,200平方米
- 得房率:约66-78%
- 楼层层高:4.05米
- 交付标准架高地板,铝扣板吊顶,乳胶漆墙,玻璃门架高地板:130mm
- 电梯系统主楼:低区3部、中区5部、高区6部、货梯2部辅楼:客梯8部、货梯2部
- VAV中央空调,空气过滤去除PM2.5
- 开放时长:工作日8:30-18:00,周六8:30-13:00
- 停车位数:945个
- 停车费:1,300元/月,临停10元/小时
- 物业管理费:30元/平方米*月